Clichy // Logements collectifs et maison de ville
Client : SNC Huntziger 11
Architecte : STA Architecture
Programme : Rénovation et surélévation immeuble + maison de ville neuve
Localisation : Clichy (92), France
Surface : 250 m² (neuf)
Année : PC 2022
Architecte : STA Architecture
Programme : Rénovation et surélévation immeuble + maison de ville neuve
Localisation : Clichy (92), France
Surface : 250 m² (neuf)
Année : PC 2022
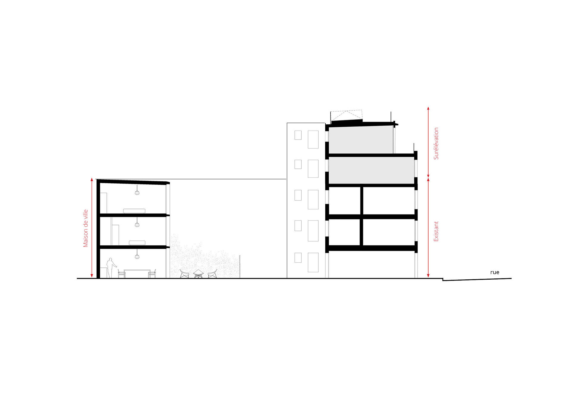
L’opération de logements collectifs “11 Huntziger” se situe en banlieue parisienne dans la ville de Clichy (92). Le projet comprend la réhabilitation d’un immeuble de logements collectifs sur rue et la construction d’une maison individuelle en fond de parcelle. Les travaux se sont organisés en deux phases : une première centrée sur la réhabilitation de l’immeuble sur rue, et une deuxième sur la construction neuve en fond de parcelle.
Le site étant situé dans un secteur protégé par les monuments historiques en raison de sa proximité avec le centre-ville de Clichy, notre équipe de maîtrise d’œuvre s’est évertuée à développer le projet en symbiose avec les Architectes des Bâtiments de France et le service d’urbanisme de la mairie. L’immeuble sur rue est un bâtiment issu des faubourgs des années 1850-1870 s’élevant sur 4 niveaux existants, et dont les immeubles adjacents profitent chacun de 2 niveaux supplémentaires. La dent creuse ainsi créée a été identifiée comme une opportunité par les différents acteurs du projet, qui a été mise à profit par la création d’une surélévation. L’architecture proposée, aux lignes simples et épurées, apporte une note contemporaine au bâti existant, tout en s’intégrant de façon discrète et harmonieuse au tissu faubourien.
La maîtrise d’ouvrage, représentée par des acteurs privés de la promotion immobilière, est à l’origine d’un cahier des charges ambitieux et exigeant visant à offrir aux futurs usagers un cadre de vie qualitatif. Le cœur de parcelle a bénéficié d’un aménagement paysager, traitée en majeure partie par de la pleine terre avec un cheminement piéton en sable stabilisé perméable à l’eau de pluie. Un véritable jardin s’est ainsi constitué, par la plantation d’arbres, d’arbustes et de végétation de type sous-bois. Une attention particulière a été portée aux espaces de circulation qui ont été conçus comme des espaces partagés, accompagnant la transition entre espace public et espace privé.
Les appartements au nombre de 4, sont constitués d’un T1, de deux T2 et d’un T5. L’appartement situé aux derniers étages profite d’un balcon filant et d’un toit-terrasse accessible en partie végétalisé. Les espaces extérieurs se définissent comme un prolongement des espaces intérieurs, où se dégagent des vues lointaines sur les villes de Clichy et de Paris. Le séjour bénéficie d’un espace dégagé et lumineux, grâce à sa grande baie vitrée orientée sud-ouest. Le bâtiment a bénéficié d’une rénovation énergétique complète répondant aux normes RE2020, principalement centrée sur son enveloppe extérieure. Des matériaux biosourcés ont été mis en œuvre, tels que des isolants en fibre et laine de bois, ou issus d’un mélange de coton, de lin et de chanvre.
En fond de parcelle, c’est une maison individuelle qui a remplacé un ancien atelier de métallerie. Le bois qui constitue l’ossature, révèle la structure extérieure de la façade, marquée par des encadrements généreux autour des baies vitrées. Le verre est à l’origine d’une architecture ouverte sur l’extérieur, qui offre des sensations et un confort spatial créés par des espaces intérieurs clairs, lumineux, baignés de soleil, et profitant d’un rapport privilégié avec le jardin privatif. La séquence spatiale que constituent le séjour et la terrasse en bois donnant sur le jardin, permet aux usagers de profiter d’un espace de vie décuplé en été, sans distinction entre intérieur et extérieur. L’ouverture aux deux tiers de la baie vitrée, le seuil filant et la continuité du matériau au sol (du bois) sont les éléments qui ont permis de favoriser cet échange.
Si l’ouverture sur l’extérieur contre l’enclavement créée par la configuration du site, la préservation de l’intimité des usagers a suscité une attention particulière des architectes. Pour cela, différents dispositifs ont été mis en place, dont des parois ajourés en bois (que ce soit la clôture du jardin au RDC ou les claustras extérieurs placés devant les baies vitrées), des rideaux toute hauteur permettant d’ajuster le degré d’occultation souhaité (fermeture totale ou partielle avec des voilages doublés de tissus occultants), et du verre sablé au niveau des baies vitrées afin d’empêcher une visibilité directe sur les bâtiments voisins.
En considérant les opportunités que la ville existante offre, le projet de Clichy témoigne de l’ambition de l’agence STA Architecture de promouvoir des solutions architecturales et urbaines adaptées au corollaire écologique. La micro-intervention urbaine que représente le projet participe à une optimisation fine du territoire, en aidant la ville existante à se redensifier, se réactiver et se revégétaliser, sans empiéter sur les terres encore non construites et nécessaires à l’absorption des eaux de pluies, et à la préservation de l’environnement et de la biodiversité.